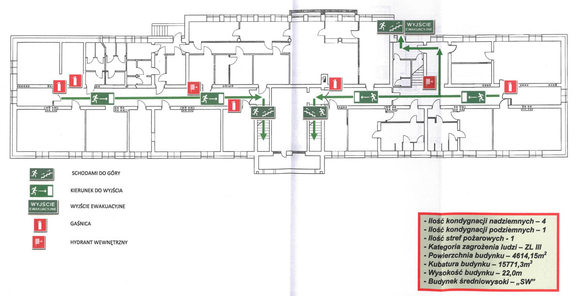
Plan ewakuacji szkoły
Plan ewakuacji szkoły - I PIĘTRO
Plan ewakuacji szkoły - II PIĘTRO
Plan ewakuacji szkoły - III PIĘTRO
Plan ewakuacji szkoły - PARTER
Plan ewakuacji szkoły - PIWNICA
Plan ewakuacji szkoły - SALA GIMNASTYCZNA PARTER
Plan ewakuacji szkoły - SALA GIMNASTYCZNA PIĘTRO
Powered by Phoca Download







